Praha - Zahrady Škvorec

Harmonie II
č. 21

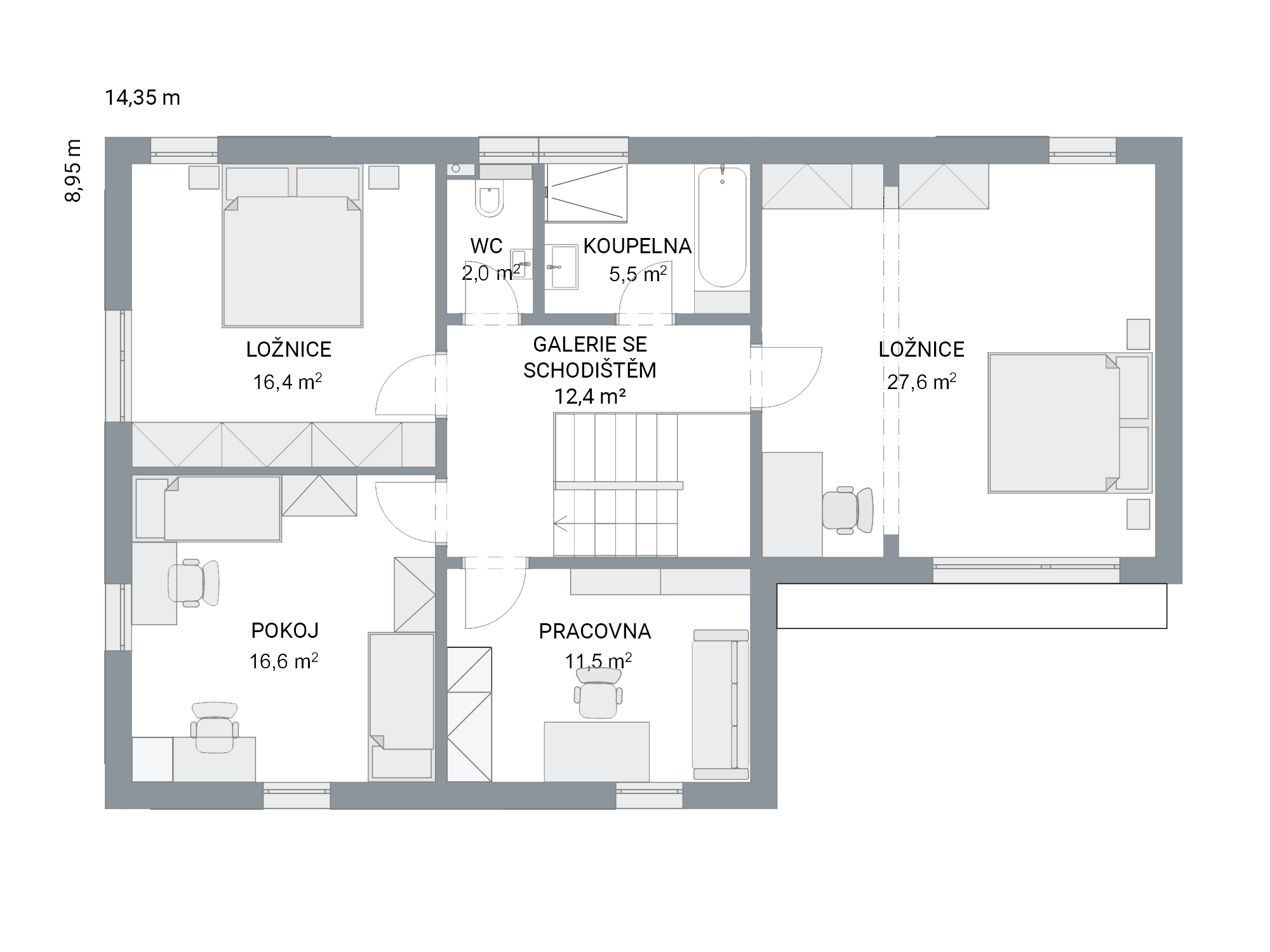
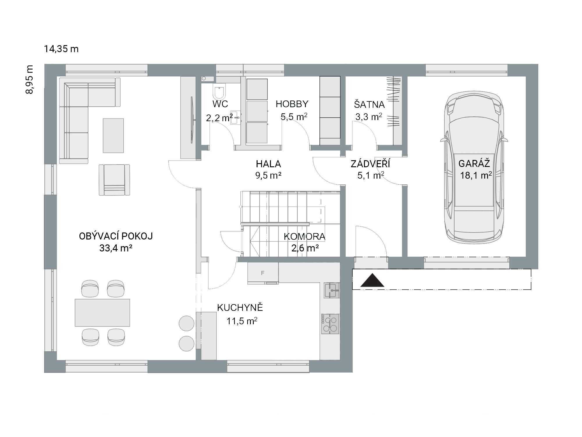
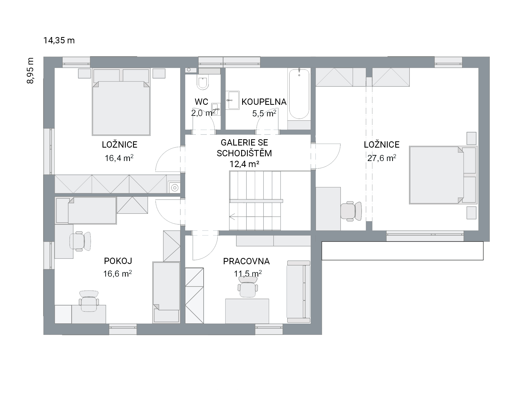
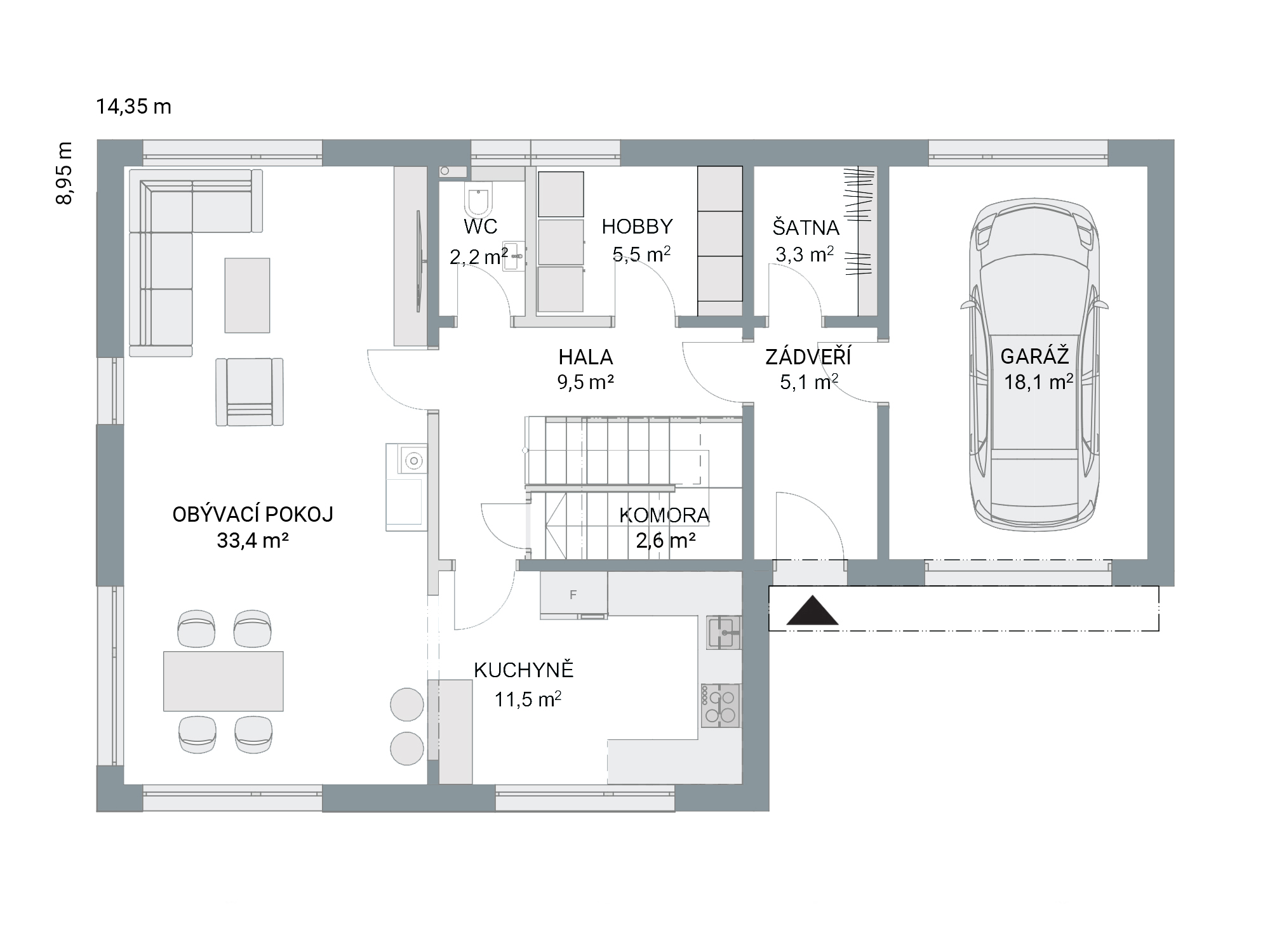
Počet místností 6+1+G
Podlahová plocha 183.0 m²
Velikost pozemku 826.0 m²
Parkováníparkování pro 3 auta
Příslušenstvítepelné čerpadlo
Stav prodeje volný
Cena (vč. 12% DPH) 17 299 000 Kč
* Součástí ceny není poplatek za rozvoj infrastruktury ve výši 150 000 Kč.
volejte zdarma
800 910 910
OBJEDNAT KATALOG
Osobní údaje Právní dokumenty Ochrana oznamovatelů Kontakty Cookies
POZOR NOVÁ VERZE WEBU