Toužíte po vlastním rodinném domě se zahradou za bezkonkurenční ceny? Chcete bydlet hned? Přijďte již k hotovému a bez zbytečných starostí.
Vyberte si svůj dům v atraktivních lokalitách po celé České republice.

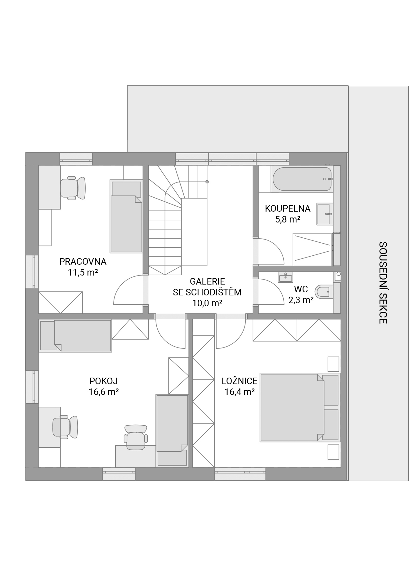
Lokalita Park Nehvizdy VI. je navazující etapa na úspěšnou výstavbu v Nehvizdech u Prahy, ve které bude realizováno celkem 34 rodinných domů o dispozici 4+1 (95 m2) s vlastní zahradou od 5,8 mil Kč. Lokalita bude postavena v klidné části obce a poskytne svým obyvatelům nerušený výhled na krásnou okolní přírodu v těsné blízkosti Prahy.

V lokalitě Jižní Stráně (Kladno), v nové ulici Višňovka, bude realizováno celkem 14 nízkoenergetických rodinných domů s dispozicemi 4+1, 5+1 s vlastní zahradou v blízkém okolí Prahy. Rodinný dům si zde můžete pořídit již od 4,9 mil Kč včetně DPH. Infrastruktura lokality Jižní Stráně je již dokončena a rodinné domy budou realizovány v průběhu roku 2020 a 2021.