Praha - Zahrady Škvorec

Ideal II
č. 16

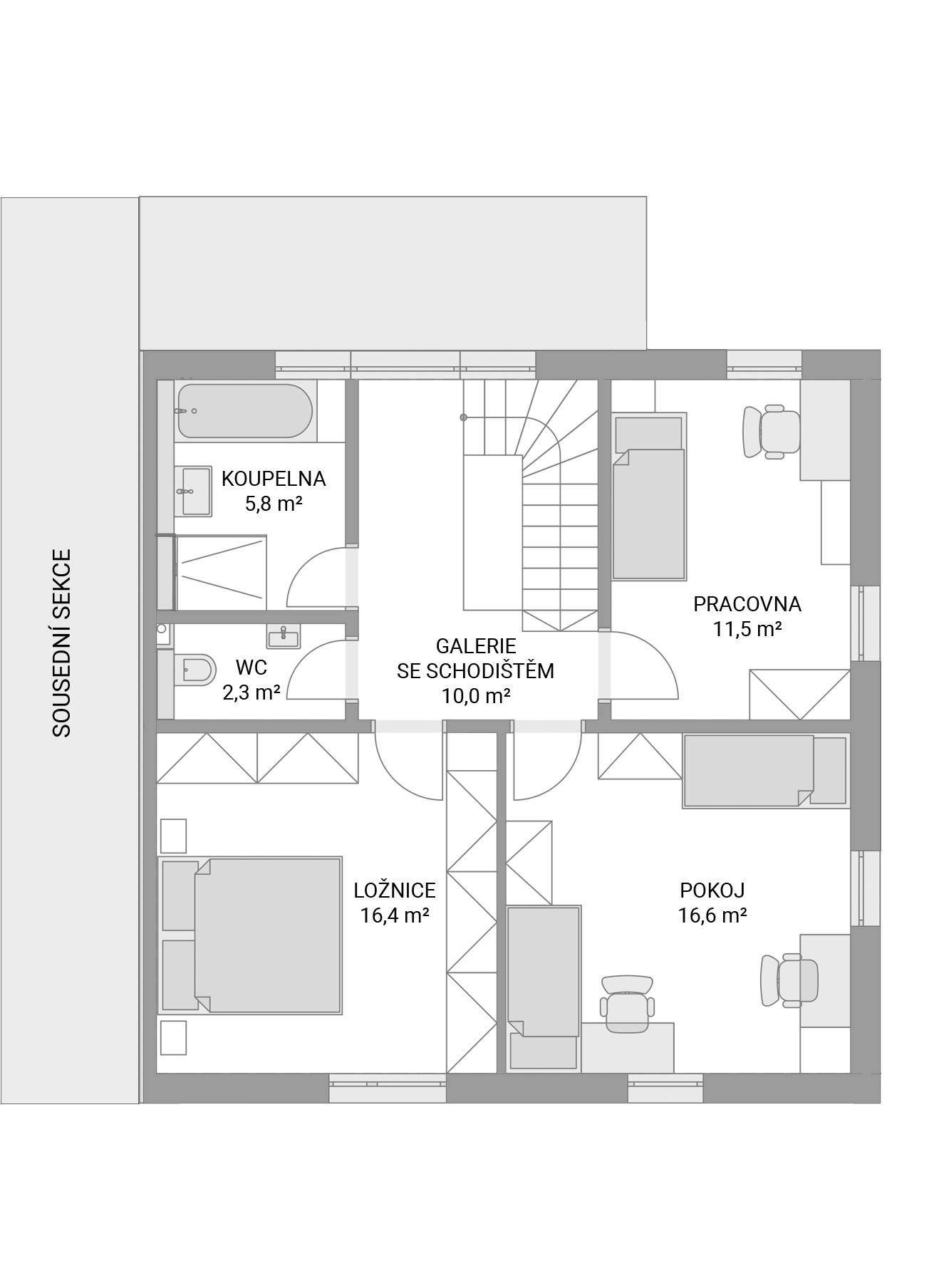
Počet místností 5+1
Podlahová plocha 142.0 m²
Velikost pozemku 426.0 m²
Parkováníparkování pro 3 auta
Příslušenstvítepelné čerpadlo
Stav prodeje rezervovaný
Cena (vč. 12% DPH) 12 849 000 Kč
* Součástí ceny není poplatek za rozvoj infrastruktury ve výši 150 000 Kč.
volejte zdarma
800 910 910
OBJEDNAT KATALOG
Osobní údaje Právní dokumenty Ochrana oznamovatelů Kontakty Cookies
POZOR NOVÁ VERZE WEBU