Rodinný dům
HARMONIE II

NOVINKA
Canaba

HARMONIE II

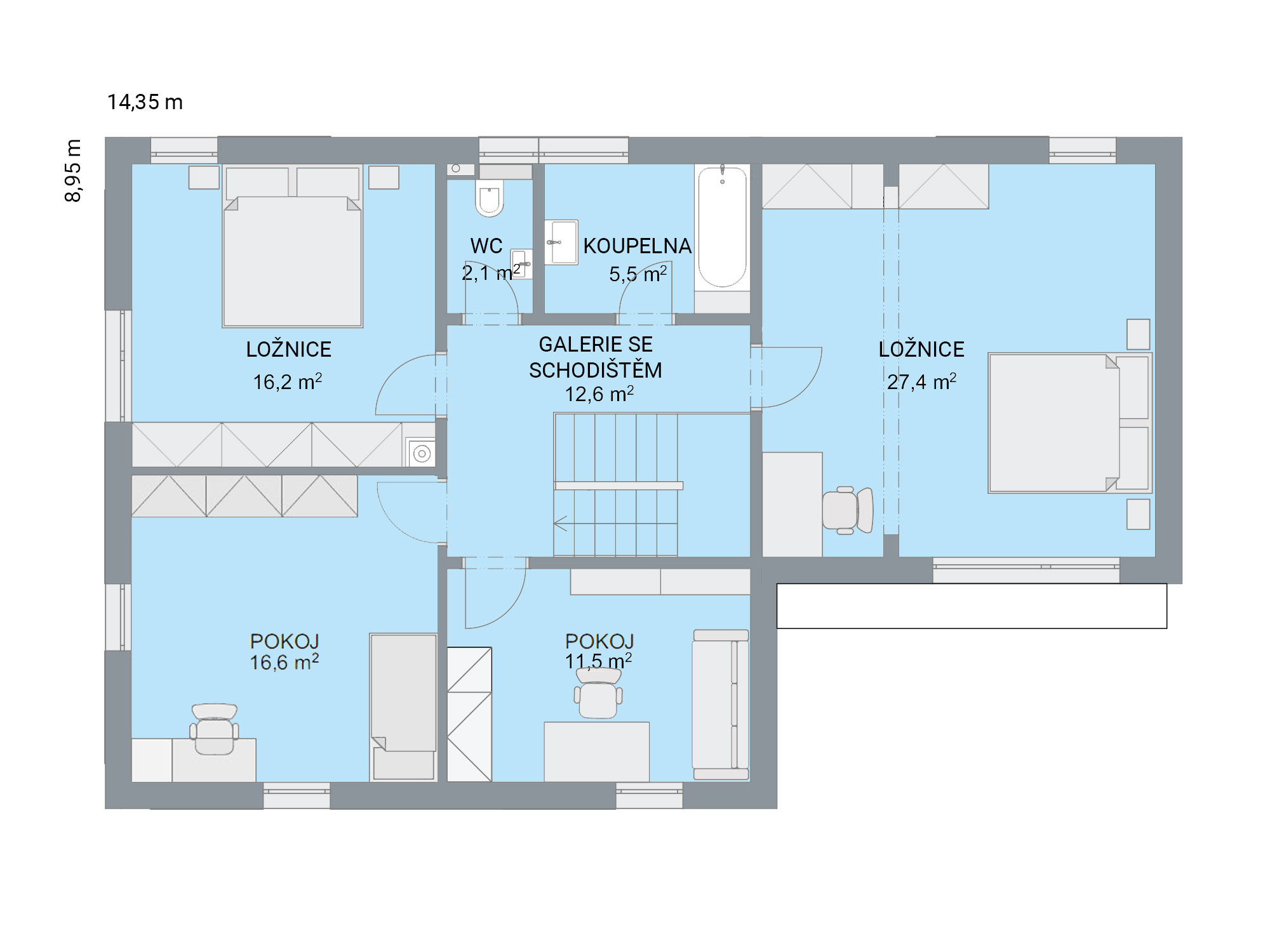
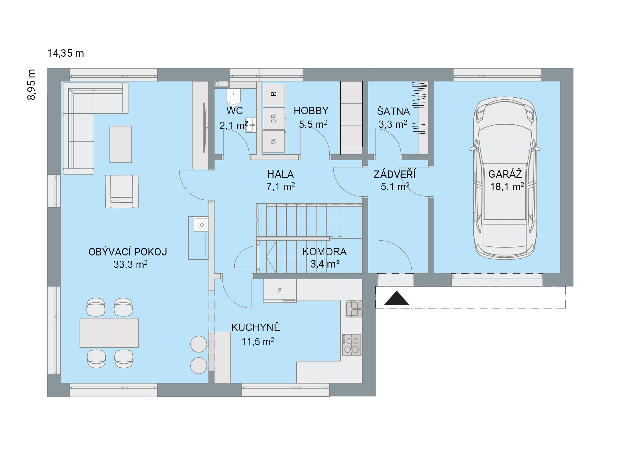
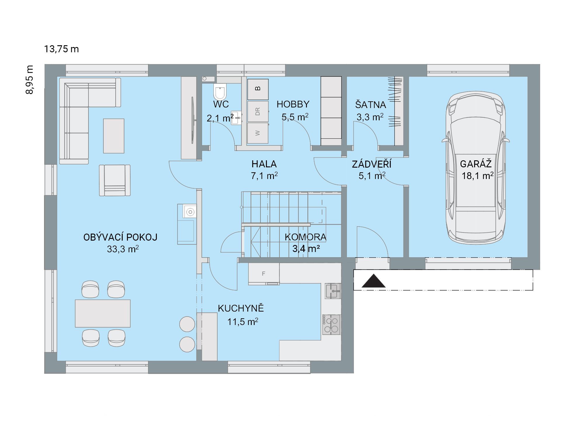
Počet místností 6+1+G
Zastavěná plocha 112.0 m²
Podlahová plocha 181.0 m²
Doba výstavby 4 - 5 měsíců
Cena na klíč od
5 949 000 Kč
(včetně DPH)
Ceník domůKompletní ceník domů
Chci navštívitChci navštívit vzorový dům

MODERNÍ A VELKORYSÁ

Rodinný dům HARMONIE II představuje ideální spojení moderní architektury s vysokou užitnou hodnotou. Jeho hlavní předností je půdorysné řešení do tvaru L s integrovanou garáží. Dům zaujme čistými liniemi a rovnou střechou, které podtrhují jeho současný vzhled a nadčasový charakter. HARMONIE II nabízí nadstandardní prostor i pro vícečlennou rodinu. Výrazným prvkem je studio nad garáží, které může sloužit jako ateliér, pracovna nebo samostatná bytová jednotka. Poměr ceny a užitné hodnoty zůstává i u této moderní varianty zcela bezkonkurenční.

Objednejte si konzultaci v klientském centru CANABA (ulice Třešnová 780, Nehvizdy)

Centrum vzorových domů uzavřeno
od 18.12.2025 (od 15:00) do 26.12.2025
a od 31.12.2025 do 1.1.2026.
Vyplňte jméno a příjmení
Vyplňte telefonní číslo
Vyplňte emailovou adresu
Zvolte datum
Zvolte čas
Zásady ochrany osobních údajů

volejte zdarma
800 910 910
OBJEDNAT KATALOG
Osobní údaje Právní dokumenty Ochrana oznamovatelů Kontakty Cookies
POZOR NOVÁ VERZE WEBU