Rodinný dům
ROMANCE

ROMANCE Máme vzorový dům

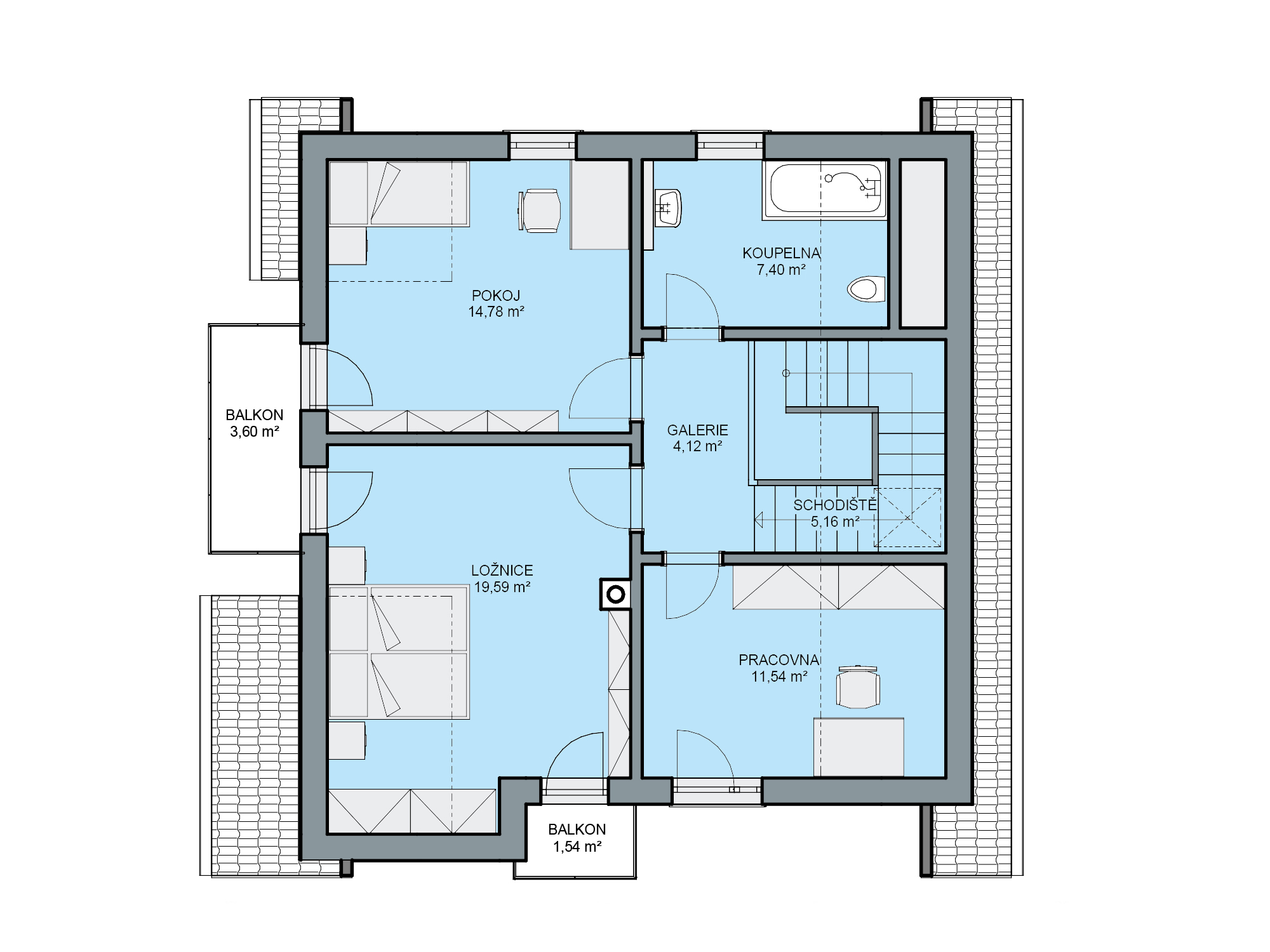
Počet místností 5 + 1
Zastavěná plocha 86.0 m²
Podlahová plocha 132.0 m²
Doba výstavby 3 - 4 měsíce
Cena na klíč od
5 149 000 Kč
(včetně DPH)
Ceník domůKompletní ceník domů
Chci navštívitChci navštívit vzorový dům

KLASICKÁ I MODERNÍ

ROMANCE je ukázkou umné kombinace klasické architektury a moderního nadčasového designu. Na první pohled vás upoutá vlídnou romantickou tváří a světlým a vzdušným prostorem. Vyvážený exteriér podtrhuje kombinace kompaktního půdorysného tvaru s lehkostí architektonických doplňků - dvojitého vikýře, originálního řešení balkonů a moderního a přitom praktického řešení sedlové střechy. Romanci však ocení nejen milovníci slunce a prostoru, ale zaujme také svým dispozičním řešením, díky kterému skýtá cenově dostupné bydlení i opravdu velké rodině.

Objednejte si návštěvu vzorového domu

Centrum vzorových domů uzavřeno
od 18.12.2025 (od 15:00) do 26.12.2025
a od 31.12.2025 do 1.1.2026.
Vyplňte jméno a příjmení
Vyplňte telefonní číslo
Vyplňte emailovou adresu
Zvolte datum
Zvolte čas
Zásady ochrany osobních údajů

Videoprohlídka

exteriér »
volejte zdarma
800 910 910
OBJEDNAT KATALOG
Osobní údaje Právní dokumenty Ochrana oznamovatelů Kontakty Cookies
POZOR NOVÁ VERZE WEBU