Rodinný dům
CHICO +

NOVINKA
Canaba

CHICO +

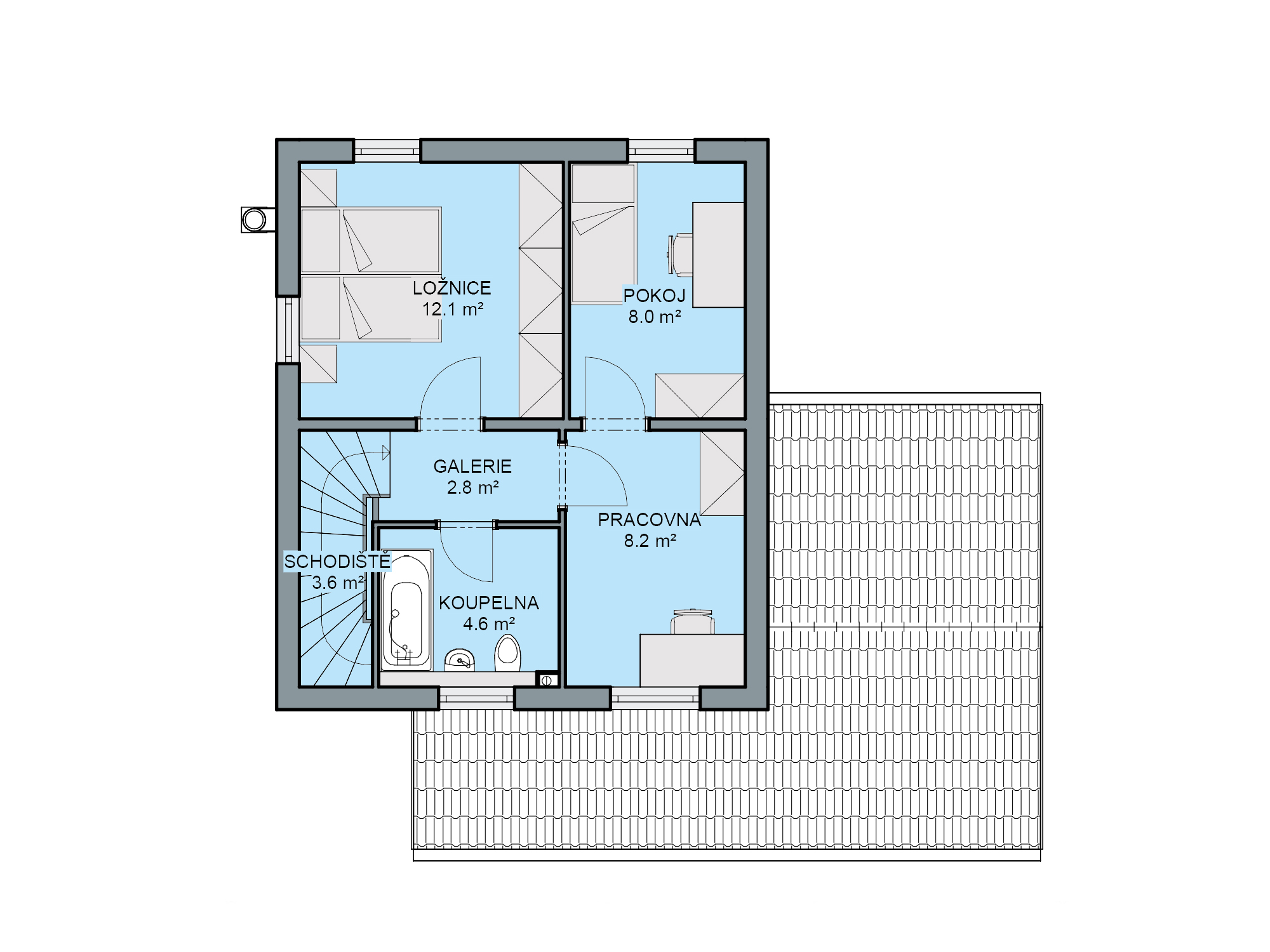
Počet místností 4+1+G
Zastavěná plocha 72.0 m²
Podlahová plocha 98.0 m²
Doba výstavby 2 - 3 měsíce
Cena na klíč od
3 649 000 Kč
(včetně DPH)
Ceník domůKompletní ceník domů
Chci navštívitChci navštívit vzorový dům

MODERNÍ A EKONOMICKÝ

Ekonomický, ale přesto moderní a architektonicky nadčasový, to je rodinný dům CHICO +. Díky kompaktním rozměrům působí nenápadně, ale uvnitř skrývá více než dostatek prostoru i pro rodinu s dětmi. Provedení domu je koncipováno tak, aby poskytovalo klidné, bezpečné a energeticky nenáročné bydlení. V základním provedení je součástí domu i prostorná garáž, nad kterou se dá v rozšířené verzi přiobjednat pokoj navíc.


 

Objednejte si konzultaci v klientském centru CANABA (ulice Třešnová 780, Nehvizdy)

Centrum vzorových domů uzavřeno
od 18.12.2025 (od 15:00) do 26.12.2025
a od 31.12.2025 do 1.1.2026.
Vyplňte jméno a příjmení
Vyplňte telefonní číslo
Vyplňte emailovou adresu
Zvolte datum
Zvolte čas
Zásady ochrany osobních údajů

volejte zdarma
800 910 910
OBJEDNAT KATALOG
Osobní údaje Právní dokumenty Ochrana oznamovatelů Kontakty Cookies
POZOR NOVÁ VERZE WEBU