Rodinný dům
UNO

UNO Máme vzorový dům

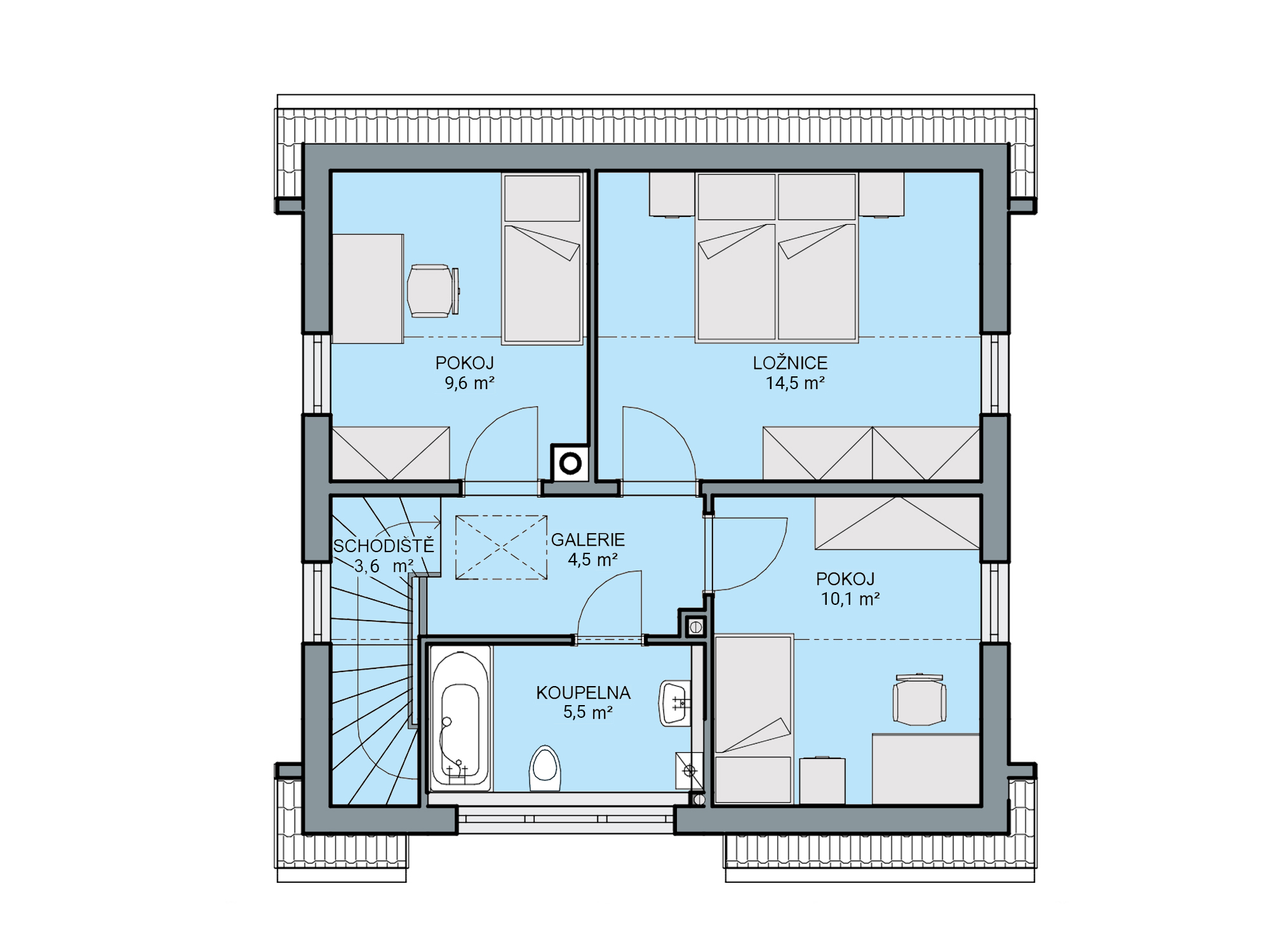
Počet místností 4 + 1
Zastavěná plocha 59.0 m²
Podlahová plocha 96.0 m²
Doba výstavby 3 - 4 měsíce
Cena na klíč od
3 749 000 Kč
(včetně DPH)
Ceník domůKompletní ceník domů
Chci navštívitChci navštívit vzorový dům

KLASICKÝ A DŮMYSLNÝ

Klasická varianta rodinného domu UNO nabízí za bezkonkurenční cenu bezmála 100 m2 užitné plochy v dispozici 4+1. Důmyslné řešení vnitřního prostoru je ideální pro pohodlný život 3 - 4 členné rodiny s dostatečnou nabídkou úložných prostor vč. praktické půdy. Nadčasová, moderní, ale klasická architektura se sedlovou střechou o sklonu 40 stupňů je vhodná do měst i na venkov, vč. chráněných oblastí. Vnější vzhled lze měnit nejen co do barvy fasády a oken či střechy, ale dům je možné doplnit pergolou s terasou, objednat si můžete i stylové kryté parkovací stání nebo praktickou garáž.

Objednejte si návštěvu vzorového domu

Centrum vzorových domů uzavřeno
od 18.12.2025 (od 15:00) do 26.12.2025
a od 31.12.2025 do 1.1.2026.
Vyplňte jméno a příjmení
Vyplňte telefonní číslo
Vyplňte emailovou adresu
Zvolte datum
Zvolte čas
Zásady ochrany osobních údajů

Videoprohlídka
interiér »
exteriér »
volejte zdarma
800 910 910
OBJEDNAT KATALOG
Osobní údaje Právní dokumenty Ochrana oznamovatelů Kontakty Cookies
POZOR NOVÁ VERZE WEBU